Contatti
Via Principe di Granatelli, 28
CAP 90139 Palermo
tel. +39 3451321365
email studio@gasparedimaggio.eu
pec dimaggio.gaspare@archiworldpec.it
P.IVA 05709630825 - Cod. SDI KRRH6B9
Back
Residenziale

Villino Aspasia

  • Cliente

    Privato

  • Superficie

    200 mq

  • Anno

    2023

  • Luogo

    Palermo

Il Progetto di villino Aspasia sorge come una risposta alle esigenze di coloro che desiderano sfuggire al caos e alla frenesia della vita urbana, soprattutto nelle aree centrali delle città come Palermo. È un tentativo di creare uno spazio dove la quiete e la natura possano essere protagoniste, anche nel contesto urbano.

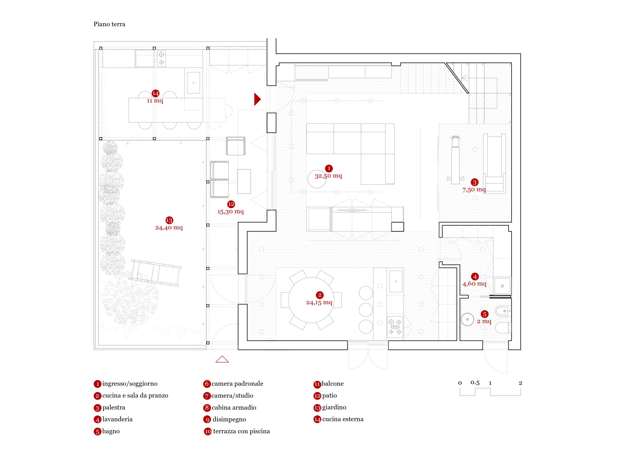
L’edificio in questione è una villetta plurifamiliare a due livelli con un design tradizionale caratterizzato da una copertura a falde e finestre dal design insolito, tondeggianti e suggestive. L’ingresso dalla strada principale conduce a un piccolo giardino interno, parzialmente coperto da un pergolato che offre un’atmosfera accogliente e rilassante. Questo spazio esterno è progettato per essere un’area dedicata al relax e al tempo trascorso all’aperto, con una zona salotto e un’area pranzo-cucina esterna ben attrezzata, integrata perfettamente con lo stile generale della casa.

Il piano terra si presenta come un vasto open space, dove i confini tra living e cucina si fondono in modo armonioso. Un mobile su misura in legno divide visivamente gli ambienti, offrendo allo stesso tempo funzionalità e estetica. La cucina, con un’isola rivestita in marmo bianco, diventa il cuore pulsante di questa zona, accogliente e funzionale allo stesso tempo. Un’attenzione particolare è dedicata ai dettagli, come il camino vetrato angolare che aggiunge calore e fascino all’ambiente.

Salendo al piano superiore, troviamo lo spazio dedicato alla zona notte. La camera padronale, con cabina armadio e bagno ad uso esclusivo, è un’oasi di tranquillità e comfort. Il design minimalista si fonde con materiali di pregio, creando un ambiente elegante e accogliente. Il bagno padronale è un vero e proprio santuario di relax, con una mini sauna accanto alla doccia e rivestimenti in marmo calacatta che conferiscono un tocco di lusso e raffinatezza.

La seconda camera al piano superiore, pensata come uno studio trasformabile in camera degli ospiti, è un ambiente versatile e accogliente. Le pareti sono rivestite da una parete libreria a tutta altezza, con sostegni vetrati che riflettono la luce naturale e creano un’atmosfera di calda intimità. Un mensolone ad L funge da scrivania, incorniciando un divano letto che offre un comodo spazio per gli ospiti durante la notte. Sulla parete opposta, un mobile contenitivo laccato verde accoglie la zona TV multimediale, creando un equilibrio armonioso tra funzionalità e design.

La camera padronale cattura immediatamente lo sguardo con la sua atmosfera tenue. La struttura letto, incastonata nella muratura, dona un senso di solidità e stabilità, mentre una porta finestra ad arco, incorniciata da due librerie in cartongesso, si apre su un balcone che accoglie la luce del sole e l’aria fresca della mattina. 

Il bagno adiacente ha pareti rivestite in grandi lastre di gres con finitura in marmo calacatta della Atlas Concorde mentre la resina cementizia colore Blu notte della Wilson Morris crea un contrasto vibrante e contemporaneo. Un’accattivante mini sauna accanto alla doccia invita al relax e al benessere, trasformando il bagno in un’oasi di tranquillità e rigenerazione.

Di controparte, l’altro bagno al piano superiore presenta rivestimenti quintessenza listellati, stavolta con alternanza di grigi e verdi, conferendo all’ambiente un’atmosfera di freschezza e modernità. Queste superfici articolate si legano bene con l’essenzialità formale della vasca freestanding in solidsurface dell’azienda Treesse.

Informazioni

Direzione: Arch. Gaspare Di Maggio

Team Design: Arch. Sabrina Latino, Arch. Francesco Gnoffo.

Marchi proposti: 

  • Caruso Handmade (Arredi)
  • Cicero&Cicero Rv Ceramiche (Ceramiche ed arredo bagno)
  • Cocolumo (Illuminotecnica)
  • Gessi, Alice, Treesse (sanitari)
  • Quintessenza, Atlas Concorde (ceramica)
  • Bugnatese, Gattoni (rubinetteria)
  • Wilson&Morris (resine)
Disegni Tecnici

 

 

Moodboard

Questo sito Web fa uso di cookie per migliorare e personalizzare la fruizione. Cookie Policy